Bodarwe Architektur
Bodarwé Architektur

Haus Iveldingen

Neubau eines Einfamilienhauses (Iveldingen)

Ort Im Uhrenfeld, 4770 Iveldingen / Amel
Kategorie Wohnraum
Typ Neubau
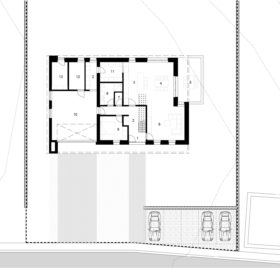
Raumprogramm
  • UNTERGESCHOSS
  • Keller 0162,3 m²
  • Keller 028,6 m²
  • Keller 0314,1 m²
  • Keller 0410,7 m²
  • ERDGESCHOSS
  • Gartenhaus8,8 m²
  • Treppe8,7 m²
  • Flur6,3 m²
  • Garage45,1 m²
  • Flur17,4 m²
  • Schlafzimmer12,2 m²
  • Toilette1,9 m²
  • Badezimmer7,6 m²
  • Abstellraum8,8 m²
  • Küche & Esszimmer43,1 m²
  • Wohnzimmer25,1 m²
  • Terrasse22,6 m²
  • OBERGESCHOSS
  • Flur17,4 m²
  • Hauswirtschaftsraum25,3 m²
  • Badezimmer11,3 m²
  • Schlafzimmer22,0 m²
  • Schlafzimmer Kinder 0113,2 m²
  • Schlafzimmer Kinder 0214,0 m²
Budget /
Status Im Bau

Neubau eines Einfamilienhauses in Iveldingen

Das Einfamilienhaus in Iveldingen folgt einem klaren Konzept, das zwei übereinanderliegende Volumen kombiniert. Das erste Volumen, ein horizontal ausgerichteter Sockel aus Bruchsteinen, bildet die Grundlage für das zweite L-förmige Volumen mit Schrägdach. Das obere Volumen ist an mehreren Stellen aus dem Sockel herausgezogen, wodurch ein überdachter Eingangsbereich an der Straßenfassade entsteht.

Der Sockel, aus robusten Bruchsteinen gebaut, wird im oberen Bereich von einer eleganten Eternitblende umhüllt. Diese Blende verläuft entlang der West-, Süd- und Ostfassaden und bedeckt die gesamte Nordfassade, was der Fassade eine betonte Horizontalität verleiht. Das darüber liegende Volumen ist mit einem schlichten, beigefarbenen Putz überzogen und zeigt sich mit einer Dachschräge, die den Eindruck eines massiven, stabilen Baukörpers verstärkt.

Das Innenraumkonzept folgt der Ausrichtung der Sonne, um sowohl den Lichteinfall als auch die Verbindung zum Außenraum zu maximieren. Die Wohnbereiche sind nach Süden ausgerichtet, wodurch der direkte Blick in den Garten und der natürliche Lichteinfall optimiert werden. Die Servicebereiche, wie Garage und Schuppen, befinden sich auf der Nordseite. Im ersten Stock profitieren die Schlafzimmer von der beeindruckenden Raumhöhe unter dem Schrägdach und dem begrünten Dach, das als zugängliche Terrasse auf dem Flachdach dient.